Hledat
Plusy

Přednosti & výhody

  • rychlejší a jednodušší montáž
  • vysoký stupeň zastínění
  • termoregulační i ochranný efekt
  • snižování hladiny venkovního hluku
  • dolní profil z extrudovaného hliníku
  • možnost elektrického ovládání
  • snížená hlučnost žaluzie

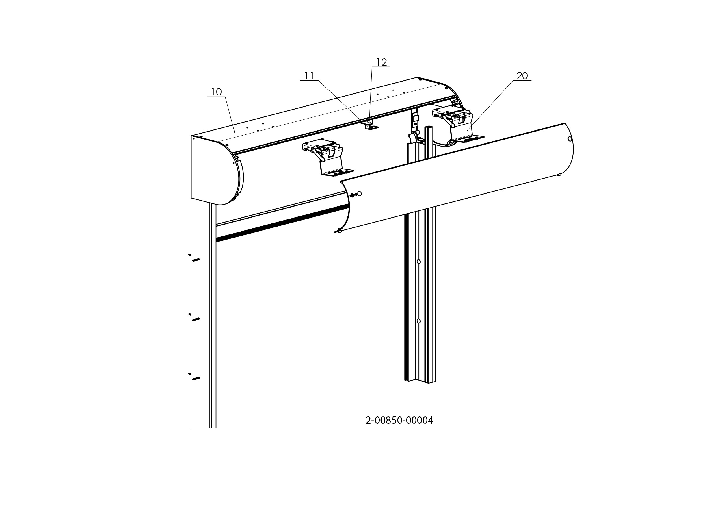
STS CLASIC – Fe

Vhodné pro všechny typy venkovních žaluzií s horním profilem 56 × 58 mm, Fe. Max. šířka pro samonosné žaluzie je 2,4 m. Při větší šířce je nutné uchytit horní profil. Při šířce nad 2,4 m budou automaticky dodány věšáky horního profilu P 002/10. Možnost spřažení až 3 ks žaluzií. Montáž na fasádu, do ostění.

Standardní rozměry žaluzie

  Šířka (mm) Výška (mm) Garantovaná plocha (m2)
min. max. min. max. max.
Žaluzie STS CLASIC Fe - motor 600 2400 500 4000 16
Žaluzie STS CLASIC Fe - klika 600 2400 500 4000 8

Pozor: Montážní rozměr nabude o hodnotu věšáku horního profilu (8 mm).

STS-Clasic-Fe

STS CLASIC – Al

Vhodné pro všechny typy venkovních žaluzií s horním profilem 58 × 60 mm, Al. Max. šířka pro samonosné žaluzie je 3,5 m. Při větší šířce je nutné uchytit horní profil. Při šířce nad 3,5 m budou automaticky dodány věšáky horního profilu P 002/11. Možnost spřažení až 3 ks žaluzií.
Montáž na fasádu, do ostění.

Standardní rozměry žaluzie

  Šířka (mm) Výška (mm) Garantovaná plocha (m2)
min. max. min. max. max.
Žaluzie STS CLASIC Al - motor 600 3400 500 4000 16
Žaluzie STS CLASIC Al - klika 600 3400 500 4000 8

Pozor: Montážní rozměr nabude o hodnotu věšáku horního profilu (8 mm).

STS-Clasis-Al.jpg

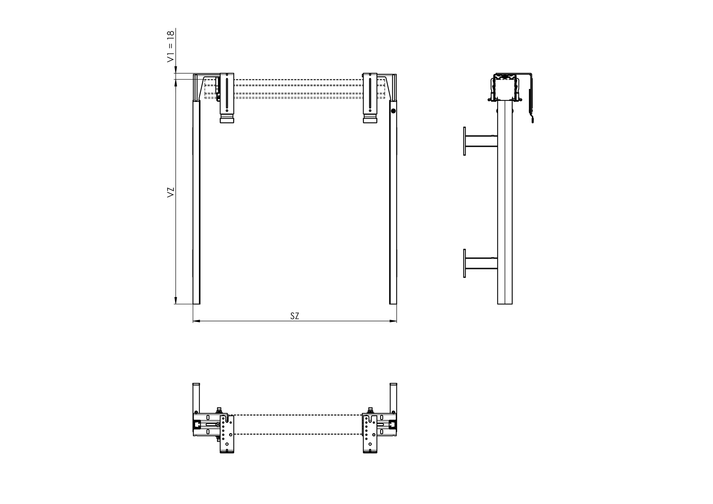
STS ALUMINIUM

Vhodné pro všechny typy venkovních žaluzií s horním profilem 58 × 60 mm, Al. Max. šířka pro samonosné žaluzie je 4 m. Jednoduchá a rychlá montáž. Vhodné pro motorické ovládání, možnost spřažení 2 ks žaluzií. Montáž na fasádu, do ostění.

Standardní rozměry žaluzie

  Šířka (mm) Výška (mm) Garantovaná plocha (m2)
min. max. min. max. max.
Žaluzie STS ALUMINIUM 600 4000 500 4000 16

Pozor: Vždy je dodáván Al vyztužovací profil. Profil s výztuhou bude mít o 18 mm větší zástavnou výšku.

STS-Aluminium.jpg

STS FIX

Vhodné pro všechny typy venkovních žaluzií s horním profilem 56 × 58 mm, Fe. Max. šířka pro samonosné žaluzie je 2,4 m. Při větší šířce je nutné uchytit horní profil, automaticky bude dodán přídavný držák P 009/3. Vodící lišta P 018/2 FIX dodána předmontovaná včetně držáku P 010/50, vodící lišta P 016/3 dodána předmontovaná včetně držáku P 010/21.

Jednoduchá a rychlá montáž. Montáž na fasádu, do ostění. Vhodné pro motorické ovládání, možnost spřažení až 3 ks žaluzií.

Standardní rozměry žaluzie

  Šířka (mm) Výška (mm) Garantovaná plocha (m2)
min. max. min. max. max.
Žaluzie STS FIX 600 2400 500 4000 16

Pozor: Montážní rozměr nabude o hodnotu věšáku horního profilu (15 mm). U výrobku STS FIX dochází automaticky ke krácení horního profilu o 25 mm z každé strany.

STS-FIX.jpg

BRAVO

Vhodné pro všechny typy venkovních žaluzií s horním profilem 56 × 58 mm, Fe. Žaluzie se samonosnými lištami a možností integrované sítě proti hmyzu. Horní profil žaluzie včetně paketu lamel je umístěn v již zkompletovaném boxu v oblém provedení. Po stranách boxu jsou bočnice pro spojení s vodicími lištami. Standardní provedení je vždy s textilním páskem 8 mm. Provedení pouze s kolmou spodní lištou. Vhodné pro motorické ovládání, motor je umístěn vždy uprostřed.
Montáž na fasádu, do ostění.

Standardní rozměry žaluzie

  Šířka (mm) Výška (mm) Garantovaná plocha (m2)
min. max. min. max. max.
Bez sítě proti hmyzu 600 3500 500 4000 10,5
Se sítí proti hmyzu 720 1800 500 2500 3

Použitím tohoto provedení se ušetří 40 mm výšky schránky (výšky krycího plechu) vůči standardnímu provedení.
Max. výška žaluzie, kterou pojme schránka velikosti 210 mm.

Bravo.jpg

VIVA

Vhodné pro všechny typy venkovních žaluzií kromě Cetty 50 a Titanu. Žaluzie se samonosnými lištami a možností integrované sítě proti hmyzu. Horní profil žaluzie včetně paketu lamel je umístěn v již zkompletovaném boxu ve dvou variantách, buď v zaomítacím nebo přiznaném provedení. Po stranách boxu jsou bočnice pro spojení s vodícími lištami.
U zaomítacího provedení může být box opatřen z vnitřní strany tvrzeným polystyrenem, styrodurem, nebo Alutermo. Montáž na fasádu, do ostění.

Standardní rozměry žaluzie

  Šířka (mm) Výška (mm) Garantovaná plocha (m2)
min. max. min. max. max.
Bez sítě proti hmyzu 600 4000* 500 4000 12
Se sítí proti hmyzu 720 1800 500 2500 38

*Jedná se o max. šířku boxu.

VIVA
Zeptejte se nás

Zaujal Vás produkt?

Rádi vám odpovíme na vaše otázky, stačí vyplnit formulář a my Vám nejpozději do 3 pracovních dnů odpovíme.
Odesláním dotazu souhlasíte se zasíláním obchodních sdělení společnosti, podle ustanovení § 7 zákona č. 480/2004 Sb., ve znění novel, na elektronickou adresu odesílatele. Odesílatel zprávy si je plně vědom toho, že tento souhlas je oprávněn kdykoliv v budoucnu odvolat, a to jak pro přijetí jednotlivé zprávy, tak pro přijímání obchodních sdělení.